Atelier Sébastien Olivet

01/17

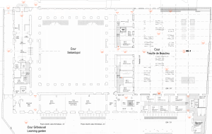
Sciences-Po | Hôtel de l'Artillerie

L’ancien Noviciat des Jacobins de la fin du XVIIe siècle et du début du XVIIIe siècle a subi plusieurs reconversions majeures dès la Révolution jusqu’au XXe siècle où il devient Hôtel de l'Artillerie. Malgré ces modifications d’usage, ce site remarquable niché au cœur de Paris a conservé toute sa valeur et toute son identité d’édifice conventuel.

Sa récente reconversion en haut lieu de culture et d’enseignement portée par Sciences Po a été une opportunité de revaloriser cet ensemble historique en lui conservant une fois de plus toute sa valeur patrimoniale. Le parti de restauration et de reconversion de l’Hôtel de l’Artillerie a retenu l’état de 1819-1924 comme référence permettant de conserver l’état proche de l’existant en maintenant par exemple la surélévation de l’aile Sud et son retour sur la place Saint-Thomas d’Aquin et une grande partie de l’état « Musée de l’Artillerie ». Sébastien Olivet, architecte chef de projet pour l'agence Pierre Bortolussi ACMH, a assuré le suivi des études et du chantier de la phase concours à la livraison.

ProjetRestauration et restructuration de l'Hôtel de l'Artillerie
ProtectionsClassement et Inscription MH
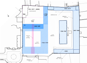
Dimensions16 000m2
Montant des travaux46M
Statut2017-2021
Maître d'OuvrageSogelym-Dixence | Sciences-Po
ÉquipeSébastien Olivet, chef de projet, Agence d'architecture Pierre Bortolussi ACMH | Agence d'architecture Jean-Michel Wilmotte | Agence Moreau-Kusunoki | BET Somete | BET Terrell | BET Mugo | BET Impédance | BET Progexial | BET Locomotion
EntreprisesBouygues Rénovation Privée | H. Chevalier | Caillaud | Mériguet | Ateliers de la boiserie | Ambiance Parquets | SDEL | Lefort
Adresse1, place Saint-Thomas-d'Aquin | Paris 7

Autres projets